



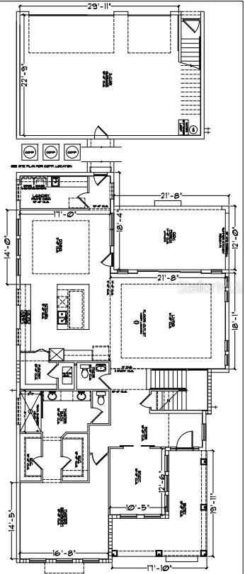
Under Construction. Welcome to The Fiji, a beautifully designed home offering over 3,900 living square feet of thoughtfully crafted living space, where elegance, flexibility, and modern comfort come together to create a home that is equally suited for relaxing evenings and lively gatherings. With five bedrooms, four and a half baths, and a spacious open layout, this home provides the perfect balance of private retreats and inviting shared spaces. Step through the foyer and into a light-filled main living area where large windows and sliding glass doors lead to the covered lanai, creating a seamless connection between indoor and outdoor living. The expansive living room flows effortlessly into the deluxe kitchen and dining area, forming the true heart of the home. The chef-inspired kitchen features premium appliances, a large center island, and a hidden walk-in pantry, offering both beauty and functionality. Just beyond, the dining area provides the perfect setting for everyday meals or special occasions, while the nearby lanai invites you to enjoy outdoor dining, morning coffee, or relaxing evenings in the Florida breeze. The first-floor primary suite is privately tucked away, creating a peaceful retreat within the home. This spacious sanctuary features dual walk-in closets and a luxurious spa-inspired bath with dual vanities and a walk-in shower. A nearby flex room adds even more versatility and can easily function as a home office, library, or additional guest space. Upstairs, two additional bedrooms share convenient access to a full bath with a third bedroom with private bath. A generous game room with access to second floor balcony creates the ideal space for movie nights, gaming, or casual gatherings. Adding exceptional flexibility to the property is a private one-bedroom, one-bath apartment located above the garage, complete with its own kitchen and laundry area. This separate living space is perfect for extended family, long-term guests, a private home office, or potential rental opportunities. This home is located in Laureate Park at Lake Nona, one of Central Florida’s most sought-after communities. Residents enjoy a vibrant lifestyle with access to the community aquatic center, fitness facilities, parks, playgrounds, dog parks, and miles of walking and biking trails, along with dining, shopping, and entertainment just minutes away. With convenient access to Medical City, Orlando International Airport, and major highways, Laureate Park offers the perfect blend of connectivity and neighborhood charm. The home is built by ICI Homes, one of Florida’s largest privately owned homebuilders with more than 45 years of experience delivering quality craftsmanship and truly customizable homes. Known for their commitment to personalization, ICI Homes allows buyers to tailor floor plans and design features so each home reflects the way its owners live. Beautifully designed and incredibly versatile, The Fiji offers a rare combination of luxury living, flexible space, and the vibrant Lake Nona lifestyle.
| yesterday | Listing updated with changes from the MLS® | |
| yesterday | Status changed to Pending | |
| 3 days ago | Listing first seen on site |
Compare listings
Compare