



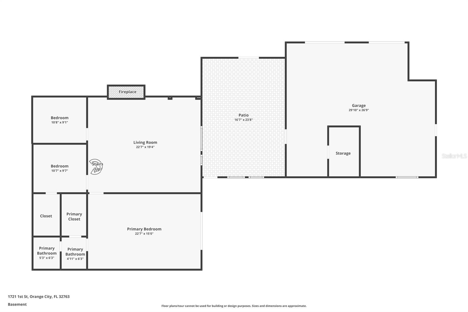
Sitting on over 2 gorgeous acres beneath a canopy of old Florida skies, this multi-level home is a rare find—original, untouched, and brimming with potential. Bring your contractor and vision: the residence is in its original state and needs a complete renovation, yet the bones, setting, and scale make the opportunity undeniable. A flexible floor plan offers entrances to both the upstairs and downstairs—an ideal setup for multi-generational living, a private guest retreat, or studio/workspace separation (verify use with county). The property shines outdoors: a substantial 10-stall horse barn with multiple potential uses (equestrian, car collection, hobby space), several outbuildings for storage, and a detached 2-car garage with bathroom. Sprawl out, spread out—there’s room here for gardens, trailers, boats, and the lifestyle you’ve been planning. Love where you live: just minutes to Blue Spring State Park (manatees, trails, kayaking) and the St. Johns River for world-class boating and fishing. Everyday convenience is close by—Medical, Publix, Target, entertainment and dining —while Historic Downtown DeLand adds boutiques, cafés, and arts. Commuters will appreciate quick access to I-4, SunRail DeBary, and easy drives to Orlando, Daytona, and New Smyrna Beach. If you’ve been searching for a blank canvas with acreage, original charm, and big-sky possibilities—this is it. Create your Florida homestead, equestrian setup, or multi-gen abode in a location that delivers both nature and convenience. (Property sold as-is; renovate to your style and standards.)
| 4 days ago | Listing updated with changes from the MLS® | |
| 2 weeks ago | Listing first seen on site |
Compare listings
Compare
Did you know? You can invite friends and family to your search. They can join your search, rate and discuss listings with you.